NEW NORTH PROJECT
November 22, 2023
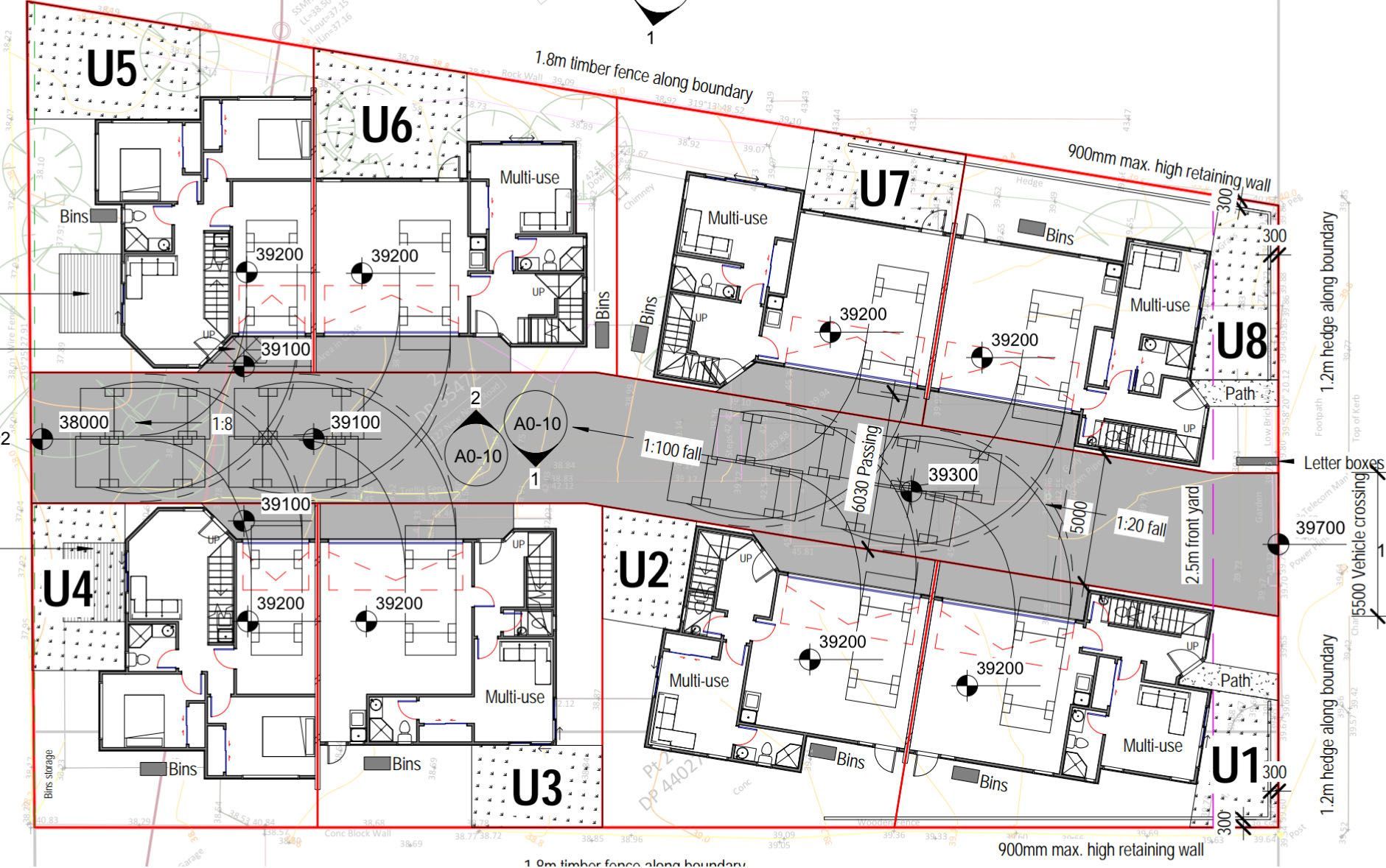
The New North Project is a project that MSBC is instructed to assist in managing the construction stage until the issue of Code of Compliance Certificate. This project is to construct eight, three storey duplex properties that has been separated into 2 stages. MSBC aims to complete the construction of the said project within 8 months from the start date.
The properties that were constructed by MSBC at the Grove Road Project were two storey duplex houses. The properties were constructed within 9 months under the strict management of our site managers. All properties constructed by MSBC was delivered before schedule, within the expected costs, and has minimal maintance issues.
The Buscomb Project is a project that was developed by MSBC. Similar to the Tripoli Project, MSBC was involved in the early on stages of the project, and has managed the Resource Consent, Building Consent, subdivision and construction stage of the project. The Buscomb Project consist of ten, three storey terrance houses. Under the managed of MBSC, the Buscomb Project is near completion and pending issuing of Code of Compliance Certificate.

The Tripoli Project is a project that is currently under the construction stage managed by MSBC. MSBC was instructed to fully manage with the Resource Consent, Building Consent, subdivision and construction stage of the said project. This project is to construct seven, three storey terrance houses. MSBC aim to have this project completed within 10 months from the start date.

The Fariview Project is a project that is currently under construction managed by MSBC. MSBC was involved in the Building Consent stage, and has worked closely with the owner until today. This project is to construct two, two storey duplex properties and the estimated time for completion is approximately 8 months. Currerntly the project is on track for completion wwithin the timeframe.
Sunnymead Project was a project that was developed and completed by MSBC. This project consists of five, two storey terrance houes, and MSBC was involved in the Resource Consent. Building Consent, subdivision and construction stage. The construction stage was completed within 9 months from the start date, and there has b minimal or no maintaince issue to date.




